Apartamento 3 habitaciones 90 m² Odesa, Ucrania

Ucrania, Odesa
$107,000
$1,189/m²
;
In CRM: 38326
ID del anuncio en el sitio web o en el CRM de la empresa
Última actualización: 14/3/26

Localización

  • País
    Ucrania
  • Región / estado
    Óblast de Odesa
  • Barrio
    Odesa Raion
  • Ciudad
    Odesa
  • Dirección
    Oleksiia Vadaturskoho Street

Características del objeto

Parámetros de los apartamentos

  • Precio por m²
    Precio por m²
    $1,189/m²
  • Piso
    Piso
    9
  • Rooms:
    Rooms:
    3
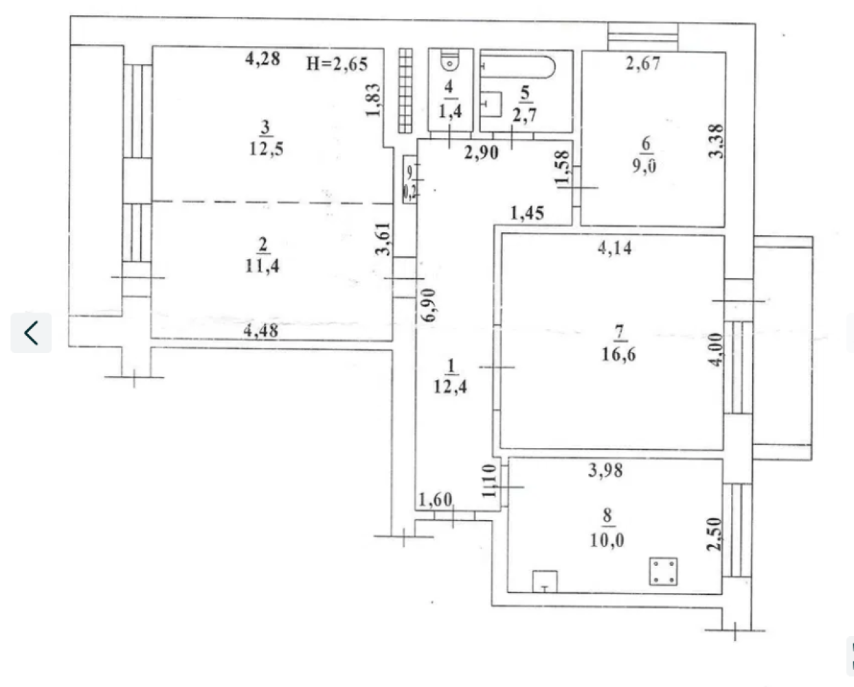
  • Área total
    Área total
    90 m²

Parámetros del edificio

  • Número de plantas
    Número de plantas
    10

Descripción

38326 Venderé un apartamento de 3 habitaciones en Cheremushki. El área total es de 90 metros cuadrados. El apartamento está situado en una nueva casa de ladrillos. Brillante y espacioso, con hermosas reparaciones de calidad. Planificación con habitaciones separadas. El apartamento está aislado en la fachada, ambas logias son acristaladas con plástico metálico. El apartamento se vende con todos los muebles y electrodomésticos. Hay aire acondicionado en cada habitación. Hay dos calderas - en el baño y en la cocina. El precio del apartamento incluye una habitación para necesidades domésticas en la habitación principal, así como un amplio garaje. El apartamento está preparado para una operación autónoma en caso de salida eléctrica: hay agua, gas, calefacción y GPON Internet. La fuente de alimentación puede conectarse a través de un inversor o estación de carga. Excelente ubicación de la casa: cerca de kindergarten, escuela, supermercado y parada de transporte público.

Localización en el mapa

Ucrania, Odesa
Educación
Cuidado de la salud
Alimentación
Finanzas

Calculadora hipotecaria

Tipo de interés, %
Plazo del préstamo, años
Coste de la propiedad
Pago inicial, %
{{ initialPaymentCurrency }} USD
Atención Ha cambiado el parámetro del coste de la vivienda a {{ differentPrice }}%. Esto afecta a la pertinencia de calcular los pagos mensuales de la propiedad actual. Devuélvelo
Tipo de interés
{{ loanPercentValue.toLocaleString() }} %
Tipo de interés
Importe del préstamo
{{ mortgageAmount }} USD
Importe del préstamo
Fecha límite
{{ loanPeriodValue | pluralize("año", "años") }}
Fecha límite
Pago mensual
{{ paymentPerMonth }} USD
Pago mensual
HayatHayat
Volver a Dejar una solicitud
Propiedades similares