Adosado 150 m² Afonino, Rusia

Afonino, Rusia
$137,873
$919/m²
;
In CRM: 2621039
ID del anuncio en el sitio web o en el CRM de la empresa
Última actualización: 19/8/25

Localización

  • País
    Rusia
  • Región / estado
    Volga Federal District
  • Barrio
    Kstovsky District
  • Pueblo
    Afonino
  • Dirección
    Vostocnaa ulica, 399

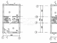
Características del objeto

Parámetros del edificio

  • Número de plantas
    Número de plantas
    3
  • Área total
    Área total
    150 m²

Descripción

Casas adosadas de 3 plantas en venta en la etapa de construcción.Las casas adosadas se encuentran en la prometedora aldea en desarrollo de Afonino, distrito de Kstovsky.Los caminos a las casas están asfaltados.El área de la casa es de 150, 5 metros cuadrados. m. (100, 5 sq. m. + 50 sq. m. - piso del ático) en una parcela de 1, 5 - 2 acres.Dos plazas de aparcamiento para coches. LPH aterriza.La entrada a la casa está asfaltada.Todas las comunicaciones: gas, agua, electricidad, alcantarillado - centralizado - Athonino.Casa con calefacción: gas, agua y alcantarillado están conectados a la casa. Un lugar ecológico cerca de la ciudad, una hermosa vista desde el sitio.Fecha límite - primavera 2022.Diseño: Fundación: profundidad 4 m, pilotes de hormigón, placa sueca, aislamiento, revestimiento.Superposición entre 1 y 2 pisos de losas de hormigón armado.Material de la pared: ladrillo blanco de silicato, espesor 380 mm (1, 5 ladrillos), aislamiento y ladrillo de revestimiento.Sangre - sistema de eslinga de madera, aislamiento 200 mm, caja, ventilación natural, drenaje. 1 piso (50 sq. m.): altura del techo 3 m, piso cálido alrededor del perímetro. Diseño libre. 2do piso (50 sq. m.): altura del techo - 3 m. Diseño libre.El techo está aislado, vigas de madera, vigas. 3er piso del ático (50 sq. m.) - sin aumentar el costo.Facturas mínimas de servicios públicos por mes, gas y electricidad, en el mostrador. La garantía para trabajos de construcción y comunicaciones es de 2 años.Calefacción: caldera de suministro de calor de gas, radiadores de aluminio, calefacción por suelo radiante del primer piso.Todo tipo de cálculos: efectivo, bon, hipoteca, etc.

Localización en el mapa

Afonino, Rusia
Cuidado de la salud
Tiendas de comestibles
Alimentación
Transporte

Calculadora hipotecaria

Tipo de interés, %
Plazo del préstamo, años
Coste de la propiedad
Pago inicial, %
{{ initialPaymentCurrency }} USD
Atención Ha cambiado el parámetro del coste de la vivienda a {{ differentPrice }}%. Esto afecta a la pertinencia de calcular los pagos mensuales de la propiedad actual. Devuélvelo
Tipo de interés
{{ loanPercentValue.toLocaleString() }} %
Tipo de interés
Importe del préstamo
{{ mortgageAmount }} USD
Importe del préstamo
Fecha límite
{{ loanPeriodValue | pluralize("año", "años") }}
Fecha límite
Pago mensual
{{ paymentPerMonth }} USD
Pago mensual
Insight EstateInsight Estate
Pregunte lo que quiera
Envíe su solicitud al agente
¡Gracias! Su solicitud ha sido aceptada
Quiero ver esta instalación. ¿Está actualizado el valor del inmueble? Deseo más información sobre el inmueble. ¿Cuales las condiciones de compra para extranjeros? Me gustaría ver más fotos/vídeos. ¿Es posible comprar a crédito/hipoteca? ¿Obtendré un permiso de residencia si compro una vivienda?
Volver a Dejar una solicitud
Propiedades similares
Casa 5 habitaciones en Kaliningrado, Rusia
Casa 5 habitaciones
Kaliningrado, Rusia
Habitaciones 5
Dormitorios 3
Área 166 m²
Número de plantas 3
Más siete nueve siete ocho novecientos ocho tres daa tres tiene WhatsApp y telegrama en este…
$136,314
Dejar una solicitud
Cerrar
Por favor, dime que encontraste este anuncio en Realting.com
Vendedor particular
Idiomas hablados
Русский, Deutsch