Apartamento 3 habitaciones 130 m² Larnaca, Chipre

Chipre, Larnaca
$383,651
$2,951/m²
;
In CRM: 53953
ID del anuncio en el sitio web o en el CRM de la empresa
Última actualización: 5/2/26

Localización

  • País
    Chipre
  • Barrio
    Larnaca District
  • Ciudad
    Larnaca
  • Dirección
    Agiou Georgiou Makri, Drosia Court

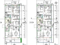
Características del objeto

Parámetros de los apartamentos

  • Precio por m²
    Precio por m²
    $2,951/m²
  • Bedrooms:
    Bedrooms:
    3
  • Bathrooms:
    Bathrooms:
    2
  • Área total
    Área total
    130 m²

Descripción

Un hermoso proyecto situado en la zona de Nuevo Hospital en Larnaca. El proyecto se encuentra en una zona tranquila, cerca de tiendas y otros servicios. A 2 km de la playa. Características clave Sistema telefónico de entrada Escaladas de mármol Estacionamiento cubierto Granito cocina trabajo Zona verde Sala de tiendas Suministro de aire acondicionado Doble acristalamiento Agua prensada Clase de energía: A AVAILABILIDAD Apartamento 2a planta Zona interna 108 metros cuadrados. Balcón cubierto 22,35 metros cuadrados. Hay más apartamentos disponibles en este proyecto. Estado del proyecto: construcción Fecha final: noviembre 2025

Localización en el mapa

Chipre, Larnaca
Cuidado de la salud
Tiendas de comestibles
Alimentación
Finanzas
Ocio

Calculadora hipotecaria

Tipo de interés, %
Plazo del préstamo, años
Coste de la propiedad
Pago inicial, %
{{ initialPaymentCurrency }} USD
Atención Ha cambiado el parámetro del coste de la vivienda a {{ differentPrice }}%. Esto afecta a la pertinencia de calcular los pagos mensuales de la propiedad actual. Devuélvelo
Tipo de interés
{{ loanPercentValue.toLocaleString() }} %
Tipo de interés
Importe del préstamo
{{ mortgageAmount }} USD
Importe del préstamo
Fecha límite
{{ loanPeriodValue | pluralize("año", "años") }}
Fecha límite
Pago mensual
{{ paymentPerMonth }} USD
Pago mensual
Volver a Dejar una solicitud
Propiedades similares
Apartamento 2 habitaciones en Larnaca, Chipre
Apartamento 2 habitaciones
Larnaca, Chipre
Dormitorios 2
Nº de cuartos de baño 2
Área 104 m²
Piso 2
Moderno apartamento de 2 dormitorios en la segunda planta de un complejo residencial contemp…
$341,228
Dejar una solicitud
Cerrar
Por favor, dime que encontraste este anuncio en Realting.com
Agencia
VIDI GROUP
Idiomas hablados
English, Русский
Apartamento 2 habitaciones en Larnaca, Chipre
Apartamento 2 habitaciones
Larnaca, Chipre
Dormitorios 2
Nº de cuartos de baño 2
Área 107 m²
Piso 3
Moderno apartamento de 2 dormitorios en la tercera planta de un complejo residencial contemp…
$347,112
Dejar una solicitud
Cerrar
Por favor, dime que encontraste este anuncio en Realting.com
Agencia
VIDI GROUP
Idiomas hablados
English, Русский
Apartamento 1 habitacion en Demos Agiou Athanasiou, Chipre
Apartamento 1 habitacion
Demos Agiou Athanasiou, Chipre
Dormitorios 1
Nº de cuartos de baño 1
Área 67 m²
Piso 2
Moderno apartamento de 1 dormitorio en la 2a planta de un desarrollo residencial contemporán…
$394,177
Dejar una solicitud
Cerrar
Por favor, dime que encontraste este anuncio en Realting.com
Agencia
VIDI GROUP
Idiomas hablados
English, Русский
Apartamento 2 habitaciones en Pafos, Chipre
Apartamento 2 habitaciones
Pafos, Chipre
Dormitorios 2
Nº de cuartos de baño 2
Área 118 m²
Galaxy Residences es un desarrollo contemporáneo que comprende dos edificios de cinco planta…
$364,872
Dejar una solicitud
Cerrar
Por favor, dime que encontraste este anuncio en Realting.com
Agencia
International Property Alerts
Idiomas hablados
English
Ático Ático 2 habitaciones en Larnaca District, Chipre
Ático Ático 2 habitaciones
Larnaca District, Chipre
Dormitorios 2
Nº de cuartos de baño 2
Área 191 m²
Piso 2
Nuevo ático de 2 dormitorios, unidad 201 en la segunda planta de un edificio residencial con…
$335,345
Dejar una solicitud
Cerrar
Por favor, dime que encontraste este anuncio en Realting.com
Agencia
VIDI GROUP
Idiomas hablados
English, Русский
Apartamento 1 habitacion en Demos Agiou Athanasiou, Chipre
Apartamento 1 habitacion
Demos Agiou Athanasiou, Chipre
Dormitorios 1
Nº de cuartos de baño 1
Área 67 m²
Piso 1
Moderno apartamento de 1 dormitorio en la primera planta de un desarrollo residencial contem…
$382,411
Dejar una solicitud
Cerrar
Por favor, dime que encontraste este anuncio en Realting.com
Agencia
VIDI GROUP
Idiomas hablados
English, Русский
Apartamento 2 habitaciones en Yeroskipou, Chipre
Apartamento 2 habitaciones
Yeroskipou, Chipre
Dormitorios 2
Nº de cuartos de baño 2
Área 106 m²
Piso 1
Apartamento de 2 dormitorios en Geroskipou. El desarrollo cuenta con modernas residencias de…
$405,390
Dejar una solicitud
Cerrar
Por favor, dime que encontraste este anuncio en Realting.com
Agencia
VIDI GROUP
Idiomas hablados
English, Русский
Apartamento 3 habitaciones en Limasol, Chipre
Apartamento 3 habitaciones
Limasol, Chipre
Dormitorios 3
Nº de cuartos de baño 2
Área 136 m²
Bellamente renovado maisonette de 3 dormitorios situado en un edificio residencial bien mant…
$400,061
Dejar una solicitud
Cerrar
Por favor, dime que encontraste este anuncio en Realting.com
Agencia
VIDI GROUP
Idiomas hablados
English, Русский