Wohnung 3 zimmer 77 m² Kommunarka, Russland

Kommunarka, Russland
Archivpreis $236,975
Verkauft oder veraltet
Ähnliche Objekte
Aktualisiert: 25.05.25

Standort

Grundstück: Russland
Region / Bundesland: Föderationskreis Zentralrussland
Stadt: Kommunarka
Adresse: Skandinavskij bulvar, 8

Gebäudedaten

Jahr der Inbetriebnahme: 2024
Etagenzahl: 16

Angaben zu den Wohnungen

Stockwerk: 2
Zimmer: 3
Die Badezimmer: 1
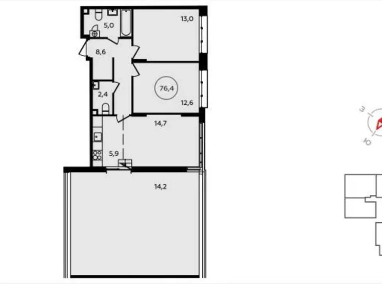
Gesamt fläche: 77 m²

Beschreibung

Zum Verkauf 3-Zimmer-Wohnung, eine Fläche von 77,2 Quadratmetern. m im 2. Stock eines Business-Class-Hauses im LCD "Scandinavia". Wohnung mit funktionalem Layout: große Fenster, Deckenhöhe von 2,99 m, Kleiderschrank, Terrasse. Keine Fertigstellung. Es gibt Optionen für Wohnungen mit Designer-Finishs und mit vorreinen weißen Box-Finishs in anderen Gebäuden des LCD. Der Wohnkomplex wird an der Grenze des Butovo Waldparks (1610 Hektar) im umweltfreundlichen südwestlichen Teil von Moskau gebaut - für diejenigen, die den Komfort einer Metropole für sich und ihre Familien wählen, aber lieber von der Natur umgeben leben. Die Hauptidee ist das Gleichgewicht von Wohnungen und Dienstleistungen, Transport Zugänglichkeit und bequeme Entfernung von den Straßen, die malerische Landschaft und entwickelte Infrastruktur. Geschäftshäuser werden im Norden und Süden des Wohnkomplexes gebaut. Im südlichen Teil bilden sie einen Geschäftsbereich, der vom Rest der Entwicklung durch Parkflächen getrennt ist. Diese Häuser verfügen über Apartments mit seltenen Formaten (Hauptschlafzimmer, private Terrasse, Ankleidezimmer oder Speisekammer, 2+ Bäder, View Apartments, Fenster im Badezimmer, erweiterte Loggia). Klassisches und Euro-Format (mit Wohnküche). Speziell gestaltete 3 Stile der Veredelung Business-Klasse. Für Besitzer von Personenkraftwagen im neuen Gebäude gibt es Boden-, Mehrebenen- und Tiefgaragen mit Aufzugzugang. Die eigene Infrastruktur des LCD "Scandinavia" umfasst allgemeine Bildungseinrichtungen, Kindergärten, Supermärkte, Einkaufs- und Sportzentren, Tierkliniken, Tierhäuser und andere Einrichtungen für ein komfortables Leben. Eine Staatsklinik wird gebaut. Auf den ersten Etagen der Häuser haben bereits Geschäfte, Kinder Entwicklungszentren, Cafés, Schönheitssalons, Dienstleistungen eröffnet. Es gibt eine Schule für 1775 Studenten, einen Kindergarten "Magic Valley" für 220 Kinder, einen Bildungskomplex "Formula" (Schule für 550 und einen Kindergarten für 150 Plätze) - an der Grenze zum Wohnkomplex "White Nights". Zur Zeit werden die Energia Schule für 1325 Studenten und der Holst Bildungskomplex (Schule für 550 und Kindergarten für 200 Plätze) gebaut. U-Bahn-Station Novomoskovskaya (2023) - 700 m, U-Bahn-Station Kommunarka - 2 km, U-Bahn-Station Teply Stan - 7 km, Buninskaya Alley U-Bahn-Station - 5.5 km, MKAD - 6,5 km, Kaluga Autobahn - 2,9 km. Anmeldung - Moskau. Vorschläge des Entwicklers im Mai 2025:

Ein Rabatt von bis zu 18% auf Wohnungen bis Ende Mai!
Kaufen und meins! Hypothek von 1 Rubel pro Monat - vor der Inbetriebnahme des Hauses!
Die "Familie Hypothek" ist zurück. Rate von 3% für die ganze Zeit! Kein teurer!
Profitable Hypothek Combo: Hypothek 1 R / Monat und ab 3% nach der Geburt des Kindes! * Weitere detaillierte Informationen zu Rabatten und Werbeaktionen in der Verkaufsabteilung Artikel auf Basis des Entwicklers: 23K-22.2-290

Standort

Kommunarka, Russland
Ausbildung
Gesundheitspflege
Lebensmittelgeschäfte
Essen & Trinken