Wohnung 2 Schlafzimmer Rabat, Malta

Rabat, Malta
Archivpreis Preis auf Anfrage
Verkauft oder veraltet
Ähnliche Objekte
Aktualisiert: 04.08.25

Standort

Grundstück: Malta
Region / Bundesland: Northern Region
Stadt: Rabat

Angaben zu den Wohnungen

Die Schlafzimmer: 2
Die Badezimmer: 2

Beschreibung

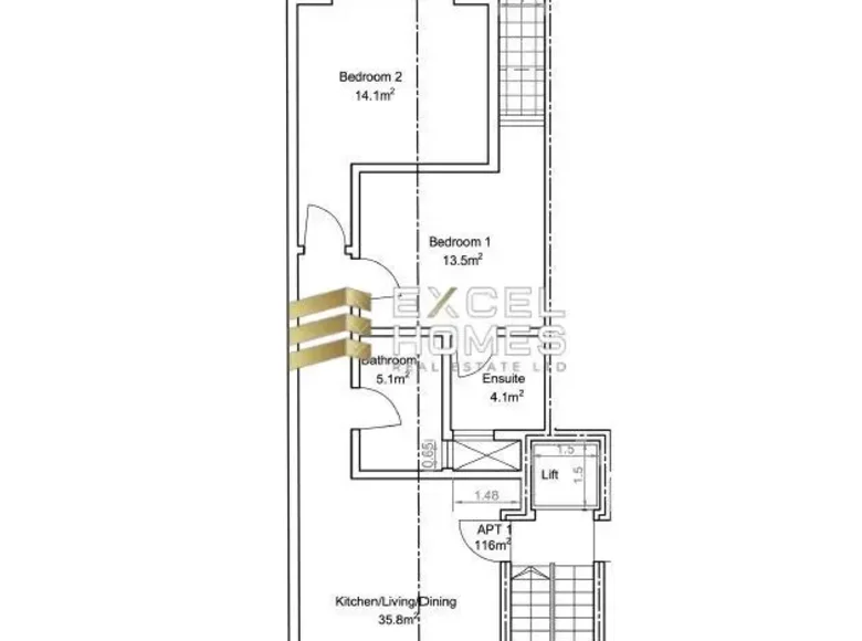
Im Herzen von Rabat liegen diese 2-Zimmer-Apartments. Bestehend aus einem großen offenen Grundriss mit Balkon, Bad und 2 Doppelschlafzimmern (Hauptschlafzimmer mit eigenem Bad). Wird fertig verkauft, ohne Innentüren und Badezimmer. Eigentumswohnung mit Aufzug. Autostellplätze sind ebenfalls zu vermieten.

Apt 1 für 280.000 (einschließlich großem Garten)

Apt 3 für 270.000

 

Nur noch eine (1) 2-Zimmer-Wohnung verfügbar

Standort

Rabat, Malta
Ausbildung
Gesundheitspflege
Essen & Trinken
Freizeit