Apartamento 3 habitaciones 76 m² Municipality of Palaio Faliro, Grecia

Grecia, Municipality of Palaio Faliro
$483,287
$6,359/m²
;
In CRM: 57983
ID del anuncio en el sitio web o en el CRM de la empresa
Última actualización: 20/11/25

Localización

  • País
    Grecia
  • Región / estado
    Attica
  • Barrio
    Regional Unit of South Athens
  • Ciudad
    Municipality of Palaio Faliro
  • Dirección
    Litous

Características del objeto

Parámetros de los apartamentos

  • Precio por m²
    Precio por m²
    $6,359/m²
  • Piso
    Piso
    1
  • Rooms:
    Rooms:
    3
  • Bedrooms:
    Bedrooms:
    2
  • Bathrooms:
    Bathrooms:
    1
  • Área total
    Área total
    76 m²

Parámetros del edificio

  • Año de construcción
    Año de construcción
    2025
  • Número de plantas
    Número de plantas
    1

Detalles del exterior

Vistas:

  • Vistas al mar
  • Vista de la ciudad

Localización

  • Primera costa

Descripción

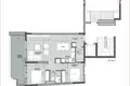
Venta en construcción apartamento de 76 metros cuadrados en Atenas. El apartamento está situado en la 5a planta. Consta de 2 dormitorios, salón con cocina, un aseo con ducha, un aseo. Piso tiene diseño delantero. Una magnífica vista de la ciudad, el mar se abre desde las ventanas. Hay: paneles solares para calefacción por agua, toldos, calefacción. El edificio tiene ascensor. Extras incluidos con la propiedad: plaza de aparcamiento. La propiedad cuenta con una piscina compartida. Complejo residencial en Palaio Faliro, una entrada a la Riviera Ateniense • 7 niveles • 21 residencias de nueva edad • Apartamentos de 2-3 dormitorios y duplexes Espacios comunes • piscina cubierta superior con vista al mar • azotea Área de barbacoa • terraza en la azotea Zonas privadas • aparcamiento • área de almacenamiento • 4 apartamentos en la primera planta • 4 apartamentos en la segunda planta • 4 apartamentos en la tercera planta • 1 apartamento y 3 duplexs en el 4o/5 planta baja • 1 apartamento en la 5a planta • 4 dúplexs en el sexto piso Palaio Faliro, puerta de entrada al Atenien Riviera restaurantes y cafés en un paseo panorámico en Flisvos Marina paseo con palmeras, parques de juegos, cine al aire libre y un puerto deportivo luxe genera un ambiente de resort todo el año junto a Stavros Niarchos Fundación Cultural Centro, centro recreativo para todas las edades y una pieza de arte diseñado por el conocido arquitecto italiano Renzo Piano El apartamento está situado en la zona de Palaio Faliro. Fecha de entrega Januari 2026

Localización en el mapa

Grecia, Municipality of Palaio Faliro
Educación
Cuidado de la salud

Calculadora hipotecaria

Tipo de interés, %
Plazo del préstamo, años
Coste de la propiedad
Pago inicial, %
{{ initialPaymentCurrency }} USD
Atención Ha cambiado el parámetro del coste de la vivienda a {{ differentPrice }}%. Esto afecta a la pertinencia de calcular los pagos mensuales de la propiedad actual. Devuélvelo
Tipo de interés
{{ loanPercentValue.toLocaleString() }} %
Tipo de interés
Importe del préstamo
{{ mortgageAmount }} USD
Importe del préstamo
Fecha límite
{{ loanPeriodValue | pluralize("año", "años") }}
Fecha límite
Pago mensual
{{ paymentPerMonth }} USD
Pago mensual
Insight EstateInsight Estate
Pregunte lo que quiera
Envíe su solicitud al agente
¡Gracias! Su solicitud ha sido aceptada
Quiero ver esta instalación. ¿Está actualizado el valor del inmueble? Deseo más información sobre el inmueble. ¿Cuales las condiciones de compra para extranjeros? Me gustaría ver más fotos/vídeos. ¿Es posible comprar a crédito/hipoteca? ¿Obtendré un permiso de residencia si compro una vivienda?
Volver a Dejar una solicitud Mostrar contactos
Propiedades similares
Apartamento 3 habitaciones en Municipality of Palaio Faliro, Grecia
UP UP
Apartamento 3 habitaciones
Municipality of Palaio Faliro, Grecia
Habitaciones 3
Dormitorios 2
Nº de cuartos de baño 2
Área 101 m²
Piso 4/5
Apartamento de 101 m² en la 4.ª planta, con 2 dormitorios, 1 baño completo y 1 aseo, y un ba…
$446,496
Dejar una solicitud
Cerrar
Por favor, dime que encontraste este anuncio en Realting.com
Vendedor particular
Idiomas hablados
English, Ελληνικά
Apartamento 4 habitaciones en Municipality of Agia Paraskevi, Grecia
Apartamento 4 habitaciones
Municipality of Agia Paraskevi, Grecia
Habitaciones 4
Dormitorios 3
Nº de cuartos de baño 3
Área 125 m²
Piso 3/3
Venta apartamento de 125 metros cuadrados en Atenas. El apartamento está situado en la terce…
$460,166
Dejar una solicitud
Cerrar
Por favor, dime que encontraste este anuncio en Realting.com
Agencia
Grekodom Development
Idiomas hablados
English, Русский, Deutsch, Ελληνικά, Български, Српски
Apartamento 3 habitaciones en Municipality of Athens, Grecia
Apartamento 3 habitaciones
Municipality of Athens, Grecia
Habitaciones 3
Dormitorios 2
Nº de cuartos de baño 2
Área 89 m²
Piso 4/4
Venta apartamento de 89 metros cuadrados en Atenas. El apartamento está situado en la 4a pla…
$462,604
Dejar una solicitud
Cerrar
Por favor, dime que encontraste este anuncio en Realting.com
Agencia
Grekodom Development
Idiomas hablados
English, Русский, Deutsch, Ελληνικά, Български, Српски
Apartamento 4 habitaciones en Municipality of Pylaia Chortiatis, Grecia
Apartamento 4 habitaciones
Municipality of Pylaia Chortiatis, Grecia
Habitaciones 4
Dormitorios 3
Nº de cuartos de baño 2
Área 137 m²
Piso 1/3
Venta en construcción apartamento de 137 metros cuadrados en Thessaloniki. El apartamento es…
$530,960
Dejar una solicitud
Cerrar
Por favor, dime que encontraste este anuncio en Realting.com
Agencia
Grekodom Development
Idiomas hablados
English, Русский, Deutsch, Ελληνικά, Български, Српски
Apartamento 4 habitaciones en Municipality of Marousi, Grecia
Apartamento 4 habitaciones
Municipality of Marousi, Grecia
Habitaciones 4
Dormitorios 3
Nº de cuartos de baño 1
Área 122 m²
Piso 1/1
Venta apartamento de 122 metros cuadrados en Atenas. El apartamento está situado en la prime…
$468,500
Dejar una solicitud
Cerrar
Por favor, dime que encontraste este anuncio en Realting.com
Agencia
Grekodom Development
Idiomas hablados
English, Русский, Deutsch, Ελληνικά, Български, Српски
Apartamento 3 habitaciones en Municipality of Agia Paraskevi, Grecia
Apartamento 3 habitaciones
Municipality of Agia Paraskevi, Grecia
Habitaciones 3
Dormitorios 2
Nº de cuartos de baño 1
Área 75 m²
Piso 2/1
Venta en construcción apartamento de 75 metros cuadrados en Atenas. El apartamento está situ…
$424,462
Dejar una solicitud
Cerrar
Por favor, dime que encontraste este anuncio en Realting.com
Agencia
Grekodom Development
Idiomas hablados
English, Русский, Deutsch, Ελληνικά, Български, Српски