Apartamento 2 habitaciones 65 m² Kopishche, Belarús

Kopishche, Belarús, Baraulianski sielski Saviet
$129,900
$1,995/m²
;
Última actualización: 25/4/26

Localización

  • País
    Belarús
  • Región / estado
    Provincia de Minsk
  • Barrio
    Minsk District
  • Ciudad
    Baraulianski sielski Saviet
  • Pueblo
    Kopishche
  • Dirección
    vulica Vikencia Karpovica, 2

Características del objeto

Parámetros de los apartamentos

  • Precio por m²
    Precio por m²
    $1,995/m²
  • Piso
    Piso
    8
  • Rooms:
    Rooms:
    2
  • Área total
    Área total
    65 m²

Parámetros del edificio

  • Año de construcción
    Año de construcción
    2019
  • Número de plantas
    Número de plantas
    10

Descripción

Le ofrecemos un apartamento de dos habitaciones con una superficie total de 65.1 m2 con reparaciones, muebles y electrodomésticos.

La casa de 2019 construido, mayor comodidad, excelente sonido y aislamiento de ruido.

El apartamento hizo excelentes reparaciones en colores claros utilizando materiales de alta calidad.

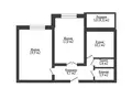
Diseño funcional conveniente, donde cada metro cuadrado está involucrado. La zona del apartamento en el SNB 65.1 m2: dos amplios salones - 19.9 m2 y 17.0 m2; gran cocina 10.2 m2 con acceso a una amplia loggia 4.3 m2; pasillo 9.7 m2; baño 3.9 m2; aseo 1,5 m2.

Se ha instalado una puerta frontal de metal. Laminado está situado en el suelo en las habitaciones y pasillo; el baño y el baño son azulejos modernos.

La cocina incorporada se realiza según un proyecto individual con todos los electrodomésticos necesarios - superficie de cocina, horno, capucha, lavavajillas.

El baño y el aseo están forrados con baldosas.

Un vestíbulo para dos apartamentos. Entrada cuidadosa y zona de casa bien cuidada. Asociación de propiedad. Tranquilos y amigos vecinos.

La entrada en el territorio se realiza a través de la barrera. Un gran número de plazas de aparcamiento gratuitos, que garantizarán la seguridad de su coche.

Modernos jardines infantiles y deportivos, zona recreativa. Una zona cercada. Sistema de videovigilancia.

Infraestructura desarrollada para una vida cómoda: jardines de infancia modernos y escuelas, un policlínico para adultos y niños, clubes y centros infantiles, muchas tiendas, puntos de emisión, oficina de correos, filiales bancarias, gimnasios, cafés acogedores, centro médico, etc.

Salida conveniente a la carretera de anillo de Moscú. Hay una parada de transporte público cerca. A la estación de metro "Uruchie" a 10 minutos en coche.

Cerca de la casa está el complejo residencial "New Borovaya", por lo que puede pasar un buen rato caminando, así como disfrutar de las hermosas vistas desde las ventanas.

No te pierdas la oportunidad de vivir una vida cómoda hoy.

Llame y haga una cita.

Le mostraremos el apartamento en cualquier momento conveniente para usted.

Número de contrato con la agencia 11/1 de 2026-03-25

Localización en el mapa

Kopishche, Belarús, Baraulianski sielski Saviet
Educación
Cuidado de la salud
Alimentación
Transporte
Finanzas

Calculadora hipotecaria

Tipo de interés, %
Plazo del préstamo, años
Coste de la propiedad
Pago inicial, %
{{ initialPaymentCurrency }} USD
Atención Ha cambiado el parámetro del coste de la vivienda a {{ differentPrice }}%. Esto afecta a la pertinencia de calcular los pagos mensuales de la propiedad actual. Devuélvelo
Tipo de interés
{{ loanPercentValue.toLocaleString() }} %
Tipo de interés
Importe del préstamo
{{ mortgageAmount }} USD
Importe del préstamo
Fecha límite
{{ loanPeriodValue | pluralize("año", "años") }}
Fecha límite
Pago mensual
{{ paymentPerMonth }} USD
Pago mensual
HayatHayat
Pregunte lo que quiera
Envíe su solicitud al agente
¡Gracias! Su solicitud ha sido aceptada
Quiero ver esta instalación. ¿Está actualizado el valor del inmueble? Deseo más información sobre el inmueble. ¿Cuales las condiciones de compra para extranjeros? Me gustaría ver más fotos/vídeos. ¿Es posible comprar a crédito/hipoteca? ¿Obtendré un permiso de residencia si compro una vivienda?
Volver a Dejar una solicitud
Propiedades similares