Dom 5 pokojów 126 m² Kurenkangas, Finlandia

Ilomantsi, Kurenkangas, Finlandia, Joensuu sub region
$40,608
$324/m²
;
In CRM: 671744
Identyfikator reklamy na stronie internetowej lub w firmowym CRM
Data aktualizacji: 17.01.2026

Lokalizacja

  • Kraj
    Finlandia
  • Region / Państwo
    Mainland Finland
  • Miasto
    Joensuu sub-region
  • Miasteczko
    Ilomantsi
  • Wioska
    Kurenkangas
  • Adres
    Pajatie, 7

Charakterystyka obiektu

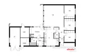
Parametry budynku

  • Liczba kondygnacji
    Liczba kondygnacji
    1
  • Piętro
    Piętro
    1
  • Rooms:
    Rooms:
    5
  • Bedrooms:
    Bedrooms:
    3
  • Bathrooms:
    Bathrooms:
    1
  • Powierzchnia całkowita
    Powierzchnia całkowita
    126 m²
  • Powierzchnia działki
    Powierzchnia działki
    5 700 m²

Szczegóły wnętrza

Urządzenia AGD:

  • Lodówka
  • Kuchenka

Wyposażenie wnętrza:

  • Internet

Funkcje naprawy:

  • Wymaga naprawy

Opis

Wszyscy oficerowie są przyjęci! Oddzielony dom w centrum Ilomantów, sprzedany w stanie rozbiórki. Dom został gruntownie odnowiony w ostatnich latach, ale na podstawie kontroli stanu i ankiet przeprowadzonych w 07 / 2025, stan budynku mieszkalnego jest słaby z powodu uszkodzenia wilgoci i pleśni na dolnej podstawie i fałszywego ślizgacza zewnętrznej ściany. Pełny raport jest dostępny od brokera. Na dziedzińcu znajduje się również oddzielny garaż i garaż. Zielony i dość wielkości działki wynajmu oferuje wiele możliwości w pobliżu usług Ilomants. Całkowity budynek zgodnie z programem wynosi 1140 m ². Tylko prywatne wprowadzenie!

Lokalizacja na mapie

Ilomantsi, Kurenkangas, Finlandia, Joensuu sub region
Jedzenie i picie
Rekreacja

Kalkulator hipoteczny

Stopa procentowa, %
Okres kredytowania, lata
Koszt nieruchomości
Płatność początkowa, %
{{ initialPaymentCurrency }} USD
Uwaga!!! Zmienili Państwo parametr koszt mieszkania na {{ differentPrice }}%. Wpływa to na zasadność wyliczenia miesięcznych płatności za obecną nieruchomość. Odłóż to.
Stopa procentowa
{{ loanPercentValue.toLocaleString() }} %
Stopa procentowa
Kwota pożyczki
{{ mortgageAmount }} USD
Kwota pożyczki
Terminy
{{ loanPeriodValue | pluralize("rok", "lata") }}
Terminy
Płatność miesięczna
{{ paymentPerMonth }} USD
Płatność miesięczna
Under SunUnder Sun
Zadaj wszelkie pytania, które możesz mieć
Wysłać wniosek do agenta
Dziękujemy! Zgłoszenie zostało przyjęte
Chcę zobaczyć ten obiekt. Czy wartość nieruchomości jest aktualna? Chciałbym uzyskać więcej informacji na temat nieruchomości. Jakie są warunki zakupu dla cudzoziemców? Chciałbym zobaczyć więcej zdjęć/filmów. Czy można kupić na kredyt/hipotekę? Czy otrzymam pozwolenie na pobyt, jeśli kupię nieruchomość?
Powrót do Zostawić wniosek Pokaż kontakty
Podobne obiekty
Dom 4 pokoi w Kyminkartano, Finlandia
Dom 4 pokoi
Kyminkartano, Finlandia
Pokoje 4
Sypialnie 2
Liczba łazienek 1
Powierzchnia 75 m²
Piętro 1/2
W doskonałej lokalizacji, wygodny i komfortowy dom pół- z trzema piętrami jest uwalniany z K…
$38,292
Zostaw prośbę
Zamknij
Proszę, powiedz mi, że znalazłeś to ogłoszenie na Realting.com
Agencja
International real estate agency Habita
Języki komunikacji
English, Русский, Deutsch, Français, Svenska, Suomi, Italiano, Dutch
Dom 2 pokoi w Tervola, Finlandia
Dom 2 pokoi
Tervola, Finlandia
Pokoje 2
Sypialnie 1
Powierzchnia 55 m²
Piętro 1/1
Skontaktuj się z przedstawicielem Habita, aby uzyskać więcej informacji na temat tego obiektu.
$39,501
Zostaw prośbę
Zamknij
Proszę, powiedz mi, że znalazłeś to ogłoszenie na Realting.com
Agencja
International real estate agency Habita
Języki komunikacji
English, Русский, Deutsch, Français, Svenska, Suomi, Italiano, Dutch
Dom 4 pokoi w Kotka Hamina sub region, Finlandia
Dom 4 pokoi
Kotka Hamina sub region, Finlandia
Pokoje 4
Sypialnie 2
Liczba łazienek 1
Powierzchnia 89 m²
Piętro 1/2
Skontaktuj się z przedstawicielem Habita, aby uzyskać więcej informacji na temat tego obiektu.
$40,731
Zostaw prośbę
Zamknij
Proszę, powiedz mi, że znalazłeś to ogłoszenie na Realting.com
Agencja
International real estate agency Habita
Języki komunikacji
English, Русский, Deutsch, Français, Svenska, Suomi, Italiano, Dutch
Dom wolnostojący 2 pokoi w Tervola, Finlandia
Dom wolnostojący 2 pokoi
Tervola, Finlandia
Pokoje 2
Sypialnie 1
Powierzchnia 36 m²
Piętro 1/1
Doświadcz spokoju Laponii w tym uroczym domku w Tervolan Loue. Ten przytulny dom ma powierzc…
$39,501
Zostaw prośbę
Zamknij
Proszę, powiedz mi, że znalazłeś to ogłoszenie na Realting.com
Agencja
International real estate agency Habita
Języki komunikacji
English, Русский, Deutsch, Français, Svenska, Suomi, Italiano, Dutch
Dom wolnostojący 1 pokój w Tornio, Finlandia
Dom wolnostojący 1 pokój
Tornio, Finlandia
Pokoje 1
Powierzchnia 30 m²
Piętro 1/1
Witamy na plaży Keroputa! Ten elektryczny domek oferuje komfortową bazę w łonie natury, a je…
$45,310
Zostaw prośbę
Zamknij
Proszę, powiedz mi, że znalazłeś to ogłoszenie na Realting.com
Agencja
International real estate agency Habita
Języki komunikacji
English, Русский, Deutsch, Français, Svenska, Suomi, Italiano, Dutch
Dom 8 pokojów w Kuopio sub region, Finlandia
Dom 8 pokojów
Kuopio sub region, Finlandia
Pokoje 8
Sypialnie 3
Liczba łazienek 4
Powierzchnia 197 m²
Piętro 1/2
Stara rezydencja szkoły Riuttala została wybudowana w 1938 roku, więc można znaleźć historię…
$43,966
Zostaw prośbę
Zamknij
Proszę, powiedz mi, że znalazłeś to ogłoszenie na Realting.com
Agencja
International real estate agency Habita
Języki komunikacji
English, Русский, Deutsch, Français, Svenska, Suomi, Italiano, Dutch
Dom 3 pokoi w Laajakoski, Finlandia
Dom 3 pokoi
Laajakoski, Finlandia
Pokoje 3
Sypialnie 2
Liczba łazienek 1
Powierzchnia 64 m²
Piętro 1/1
Współczująca mała 60-letnia rodzina czeka na nowych mieszkańców. Dom jest natychmiast wolny.…
$45,815
Zostaw prośbę
Zamknij
Proszę, powiedz mi, że znalazłeś to ogłoszenie na Realting.com
Agencja
International real estate agency Habita
Języki komunikacji
English, Русский, Deutsch, Français, Svenska, Suomi, Italiano, Dutch
Dom 4 pokoi w Keminmaa, Finlandia
Dom 4 pokoi
Keminmaa, Finlandia
Pokoje 4
Sypialnie 3
Liczba łazienek 1
Powierzchnia 110 m²
Piętro 1/3
Dom z 1957 roku na własnej powierzchni 1300 m2. Odnowiony na przestrzeni lat, na przykład, b…
$46,308
Zostaw prośbę
Zamknij
Proszę, powiedz mi, że znalazłeś to ogłoszenie na Realting.com
Agencja
International real estate agency Habita
Języki komunikacji
English, Русский, Deutsch, Français, Svenska, Suomi, Italiano, Dutch