Mieszkanie 2 pokoi 50 m² Mohylew, Białoruś

Białoruś, Mohylew
$72,000
$1,446/m²
;
Data aktualizacji: 26.04.2026

Lokalizacja

  • Kraj
    Białoruś
  • Region / Państwo
    Obwód mohylewski
  • Miasto
    Mohylew
  • Adres
    plosca Slavy, 2

Charakterystyka obiektu

Parametry mieszkania

  • Cena za m²
    Cena za m²
    $1,446/m²
  • Piętro
    Piętro
    3
  • Rooms:
    Rooms:
    2
  • Powierzchnia całkowita
    Powierzchnia całkowita
    50 m²

Parametry budynku

  • Rok realizacji
    Rok realizacji
    1959
  • Liczba kondygnacji
    Liczba kondygnacji
    5

Szczegóły wnętrza

Wyposażenie wnętrza:

  • Meble
  • Metalowe drzwi
  • Okna z podwójnymi szybami
  • Urządzenia domowe
  • Interkom
  • Wbudowana szafa

Lokalizacja

  • Centrum miasta
  • W pobliżu parków

Opis

Na sprzedaż doskonały apartament 2-k na 3 / 5 piętrze w historycznym centrum miasta na Glory Square House 2 w Mogielv, Central District (Kawiarnia "Syabry")

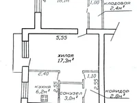
Apartament ma szereg doskonałych zalet: znajduje się na 3 z 5 piętra, ulepszony projekt domu; dobre położenie i nowy praktyczny układ mieszkania; duża kuchnia / salon z dostępem do loggii; izolowany pokój; okna z widokiem na cichą stronę domu z widokiem na plac zabaw. Powierzchnia apartamentu jest wskazana przez SNB - 52,2 m2 Powierzchnia apartamentu wynosi 49,8 metrów kwadratowych. Powierzchnia mieszkalna 35,4 m2, kuchnia 6,2 m2
Mieszkanie jest dobrze odnowione: w łazience nowa naprawa z zastąpieniem wszystkich komunikacji, hydraulika jest zainstalowana (w tej chwili stara cysterna - żelazna łazienka); na ścianach tapety; na podłodze leżał laminat; w całym suficie rozciągania mieszkania. Zainstalowano nowe okna PVC, szerokie otwory okienne, co sprawia, że apartament jest bardzo ciepły i jasny. Drzwi frontowe są metalowe. Kuchnia wyposażona jest w modułowy zestaw słuchawkowy z piecem gazowym. Zainstalowane są liczniki wody i prądu.

Czysty i czysty dostęp, telefon / internet. Wszyscy sąsiedzi są przyjaźni, przyzwoici i przyjaźni. Dobrze utrzymany dziedziniec i plac zabaw. Parkowanie zawsze jest możliwe.

W mieszkaniu znajduje się zestaw kuchenny i piec gazowy. Wszystkie pozostałe meble i sprzęt według układu.

Infrastruktura jest dobrze rozwinięta: dom w historycznym centrum Mogilewa i dość popularna mikrodzielnica z rozwiniętą infrastrukturą. W odległości spaceru jest absolutnie wszystko, czego potrzebujesz: przedszkola, gimnazjum, szkoła, oddziały bankowe, apteka, rynek, sklepy, polikliniki.

Dobre połączenia transportowe: w odległości spaceru od przystanku transportu publicznego.

Atrakcje kulturalne w odległości spaceru: Glory Square z tarasem widokowym i ratuszem; Regionalny Teatr Dramatyczny jest najstarszym na Białorusi. Park "Podnikolje" to malowniczy teren rekreacyjny z placami zabaw i ścieżkami spacerowymi.


Współpracujemy z różnymi rodzajami pożyczek i znaleźć bank, który jest opłacalny dla Ciebie, ponieważ nasza firma zatrudnia brokera hipotecznego - pomoże Ci wybrać odpowiedni program pożyczkowy i skutecznie wydać dokumentację do aplikacji. Praca z:

- Budowlany system oszczędnościowy z Belarubank;
- Kapitał rodzinny;
Kredyty hipoteczne i wszelkiego rodzaju kredyty na zakup nieruchomości.


Mieszkanie jest idealne zarówno dla własnego życia, jak i do wynajęcia!

Handel jest odpowiedni i omówiony!
Skontaktuj się z nami, aby uzyskać więcej informacji.
Doskonały zarówno dla stałego pobytu, jak i użytku komercyjnego.
Pomożemy Ci sprzedać swoją nieruchomość, aby kupić to mieszkanie!
Odpowiemy na wszystkie pytania, uzgodnimy wygodny czas wyświetlania!
Pełne wsparcie prawne i bezpieczeństwo transakcji są gwarantowane!
Szybkie zwolnienie i umowa!
Zapraszamy do oglądania i zakupu!
Zadzwoń natychmiast!

Zobacz jeszcze więcej w naszym kanale Telegram @ an7 _ estate Numer umowy z agencją 1415 / 3 od 2025- 11- 15

Lokalizacja na mapie

Białoruś, Mohylew
Edukacja
Opieka zdrowotna

Kalkulator hipoteczny

Stopa procentowa, %
Okres kredytowania, lata
Koszt nieruchomości
Płatność początkowa, %
{{ initialPaymentCurrency }} USD
Uwaga!!! Zmienili Państwo parametr koszt mieszkania na {{ differentPrice }}%. Wpływa to na zasadność wyliczenia miesięcznych płatności za obecną nieruchomość. Odłóż to.
Stopa procentowa
{{ loanPercentValue.toLocaleString() }} %
Stopa procentowa
Kwota pożyczki
{{ mortgageAmount }} USD
Kwota pożyczki
Terminy
{{ loanPeriodValue | pluralize("rok", "lata") }}
Terminy
Płatność miesięczna
{{ paymentPerMonth }} USD
Płatność miesięczna
HayatHayat
Zadaj wszelkie pytania, które możesz mieć
Wysłać wniosek do agenta
Dziękujemy! Zgłoszenie zostało przyjęte
Chcę zobaczyć ten obiekt. Czy wartość nieruchomości jest aktualna? Chciałbym uzyskać więcej informacji na temat nieruchomości. Jakie są warunki zakupu dla cudzoziemców? Chciałbym zobaczyć więcej zdjęć/filmów. Czy można kupić na kredyt/hipotekę? Czy otrzymam pozwolenie na pobyt, jeśli kupię nieruchomość?
Powrót do Zostawić wniosek
Podobne obiekty