Dom wolnostojący 234 m² Kalodziscanski sielski Saviet, Białoruś

Białoruś, Kalodziscanski sielski Saviet
$299,000
$1,275/m²
;
Data aktualizacji: 14.09.2025

Lokalizacja

  • Kraj
    Białoruś
  • Region / Państwo
    Obwód miński
  • Okolica
    rejon miński
  • Miasto
    Kalodziscanski sielski Saviet

Charakterystyka obiektu

Parametry budynku

  • Rok realizacji
    Rok realizacji
    2025
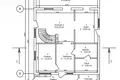
  • Powierzchnia całkowita
    Powierzchnia całkowita
    234 m²
  • Powierzchnia działki
    Powierzchnia działki
    1 250 m²

Szczegóły wnętrza

Wyposażenie wnętrza:

  • Meble
  • Kominek

Szczegóły zewnętrzne

Cechy zewnętrzne:

  • Łaźnia
  • Projektowanie krajobrazu
  • Altana

Opis

Na sprzedaż nowy ekskluzywny domek z własnym lasem na premierowej działce klasy 100% gotowości w prestiżowej miejscowości domek "Kolodischi"; zapraszamy do oglądania!

Efektywny energetycznie nowy dom; zbudowany w 2025 roku; zbudowany na indywidualnym projekcie architektonicznym; przemyślany układ architektoniczny! Wszystkie prace budowlane i wykończeniowe zostały wykonane zgodnie z rysunkami projektowymi, ściśle zgodnie z procesami technologicznymi i wiedzą o najnowszych trendach współczesnej konstrukcji podmiejskiej; wysokiej jakości najlepsze importowane materiały budowlane i wykończeniowe; europejski: hydraulika, ceramika, laminat, płytki, oświetlenie; tablica mebli; tablica drzwi; kuchnia; sprzęt gospodarstwa domowego; trwała i niezawodna konstrukcja:

- fundament - monolityczny żelbet z izolacją i wodoodpornością;

- Ściany - rama z izolacją 15 cm;

- Dach - dach metalowy z izolacją 20 cm;

Wysokiej jakości okna energooszczędne;

Nowoczesny piec, grupy pompowe, grzejniki;

Wszystkie komunikaty: światło 380- 15 kW, centralne źródło wody, kanalizacja autonomiczna, światłowód (telefon internetowy);

- Sauna w domu;

powierzchnia gruntu 12,5 akrów, oświetlenie dekoracyjne, ścieki burzowe;

- szanowani sąsiedzi;

Domek wsi "Kolodyshchi" z drogami dojazdowymi na asfaltowych drogach, położony w ekologicznie czystym obszarze, otoczony lasami; "Glebkovsky Biosphere Reserve"; 10 minut od stacji metra "Uruchye"; kierunek Moskwy, powiat Mińska!

Opracowana infrastruktura w przystępnej odległości: sklepy "Santa", "Euroopt", nowa szkoła z basenem i nowym nowoczesnym przedszkolem, poczta, bank, instytucje medyczne i apteki, przystanek autobusowy.

- Czysty las sosnowy, grzyby, jagody. Jedno z najlepszych miejsc na przedmieściach Mińska do życia i rekreacji, nie przegap swoją szansę na zakup wspaniałej rezydencji kraju, dla ludzi sukcesu, negocjacji.

Pomożemy profesjonalnie szybko i z zyskiem sprzedać nieruchomość w związku z zakupem powyższych nieruchomości, umieszczanie reklam na najlepszych specjalistycznych platformach internetowych Republiki Białorusi, Rosji, w pobliżu i daleko za granicą krajów-70 krajów świata, Profesjonalne foto-wideo-antenowe fotografii, reklamy w sieciach społecznościowych, a także wykorzystanie najnowocześniejszych i najbardziej unikalnych technologii dla pomyślnej sprzedaży nieruchomości. Odpowiemy na Państwa pytania i udzielimy wszelkich niezbędnych informacji. Napisz do nas w wygodnym posłańcu dla Ciebie: Viber Xi124; Telegram Xi124; WhatsApp.

Numer umowy z agencją 93 / 3 z 2025- 07- 09

Lokalizacja na mapie

Białoruś, Kalodziscanski sielski Saviet

Kalkulator hipoteczny

Stopa procentowa, %
Okres kredytowania, lata
Koszt nieruchomości
Płatność początkowa, %
{{ initialPaymentCurrency }} USD
Uwaga!!! Zmienili Państwo parametr koszt mieszkania na {{ differentPrice }}%. Wpływa to na zasadność wyliczenia miesięcznych płatności za obecną nieruchomość. Odłóż to.
Stopa procentowa
{{ loanPercentValue.toLocaleString() }} %
Stopa procentowa
Kwota pożyczki
{{ mortgageAmount }} USD
Kwota pożyczki
Terminy
{{ loanPeriodValue | pluralize("rok", "lata") }}
Terminy
Płatność miesięczna
{{ paymentPerMonth }} USD
Płatność miesięczna
ParkviewParkview
Zadaj wszelkie pytania, które możesz mieć
Wysłać wniosek do agenta
Dziękujemy! Zgłoszenie zostało przyjęte
Chcę zobaczyć ten obiekt. Czy wartość nieruchomości jest aktualna? Chciałbym uzyskać więcej informacji na temat nieruchomości. Jakie są warunki zakupu dla cudzoziemców? Chciałbym zobaczyć więcej zdjęć/filmów. Czy można kupić na kredyt/hipotekę? Czy otrzymam pozwolenie na pobyt, jeśli kupię nieruchomość?
Powrót do Zostawić wniosek
Podobne obiekty
Dom w Lahojsk selsaviet, Białoruś
Dom
Lahojsk selsaviet, Białoruś
Powierzchnia 186 m²
Dom wiejski w pobliżu centrum narciarskiego Logoysk ❤️Atmosfera dwupoziomowy domek z drewna …
$334,500
Zostaw prośbę
Zamknij
Proszę, powiedz mi, że znalazłeś to ogłoszenie na Realting.com
Agencja
Центр международной недвижимости Моя 7Я
Języki komunikacji
English, Русский
Dom w Wilejka, Białoruś
Dom
Wilejka, Białoruś
Powierzchnia 328 m²
Domek Premium z kominkiem i ogrodem ❤️Przestronny luksusowy dom o powierzchni 328 m2 na dzia…
$285,000
Zostaw prośbę
Zamknij
Proszę, powiedz mi, że znalazłeś to ogłoszenie na Realting.com
Agencja
Центр международной недвижимости Моя 7Я
Języki komunikacji
English, Русский
Dom wolnostojący w Miadzielski sielski Saviet, Białoruś
Dom wolnostojący
Miadzielski sielski Saviet, Białoruś
Powierzchnia 168 m²
Unikalny dom w samym sercu parku narodowego: idealny zakątek przyrody! ❤️ Na sprzedaż jest w…
$288,000
Zostaw prośbę
Zamknij
Proszę, powiedz mi, że znalazłeś to ogłoszenie na Realting.com
Agencja
Центр международной недвижимости Моя 7Я
Języki komunikacji
English, Русский
Dom wolnostojący w Baraulianski sielski Saviet, Białoruś
Dom wolnostojący
Baraulianski sielski Saviet, Białoruś
Powierzchnia 221 m²
Przestronny domek w malowniczym miejscu, zaledwie 9 km od MKAD ❤️Ten dom da Ci możliwość cie…
$273,000
Zostaw prośbę
Zamknij
Proszę, powiedz mi, że znalazłeś to ogłoszenie na Realting.com
Agencja
Центр международной недвижимости Моя 7Я
Języki komunikacji
English, Русский
Dom wolnostojący w Mińsk, Białoruś
Dom wolnostojący
Mińsk, Białoruś
Powierzchnia 341 m²
Przestronny dom w samym sercu Mińska ❤️ Lubisz rytm miasta, a jednocześnie lubisz komfort, c…
$299,000
Zostaw prośbę
Zamknij
Proszę, powiedz mi, że znalazłeś to ogłoszenie na Realting.com
Agencja
Центр международной недвижимости Моя 7Я
Języki komunikacji
English, Русский
Dom w Mińsk, Białoruś
Dom
Mińsk, Białoruś
Powierzchnia 448 m²
Trzypiętrowy dom z luksusową renowacją! ❤️ Mamy unikalną ofertę - trzypiętrowy domek z cegły…
$310,000
Zostaw prośbę
Zamknij
Proszę, powiedz mi, że znalazłeś to ogłoszenie na Realting.com
Agencja
Центр международной недвижимости Моя 7Я
Języki komunikacji
English, Русский