Casa 4 habitaciones 120 m² Langenzersdorf, Austria

Langenzersdorf, Austria
$535,582
$4,470/m²
;
In CRM: 1975
ID del anuncio en el sitio web o en el CRM de la empresa
Última actualización: 10/2/26

Localización

  • País
    Austria
  • Región / estado
    Baja Austria
  • Barrio
    Bezirk Korneuburg
  • Pueblo
    Langenzersdorf
  • Dirección
    An den Muhlen, 38

Características del objeto

Parámetros del edificio

  • Año de construcción
    Año de construcción
    2026
  • Rooms:
    Rooms:
    4
  • Bathrooms:
    Bathrooms:
    2
  • Área total
    Área total
    120 m²
  • Espacio habitable
    Espacio habitable
    120 m²

Descripción

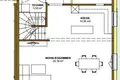
Con un excelente valor para el dinero, ocho casas semiconjuntas de alta calidad se crean en Langenzersdorf con un interés mensual barato de los derechos de construcción sólo € 192.- ! Descripción del proyecto A pocos minutos de Viena, las modernas casas semiconjuntas están construidas en construcción sostenible de madera maciza. El proyecto combina vida ecológica, arquitectura moderna y confort de vida más alto – ideal para familias y parejas exigentes. El diseño sofisticado, la planificación práctica y el equipo de alta calidad garantizan un clima interior saludable y una vida eficiente en la energía al más alto nivel. ¡La entrega de casas listas para matar está prevista a principios de 2027! Equipo Construcción de madera maciza (CLT) – natural, sostenible y duradera Ventana de aluminio plástico triple acristalada para una óptima aislamiento térmico y protección del sonido, puerta corredera de elevación generosa Bomba de calor de aire (230Litera de almacenamiento de agua caliente) – calentamiento ecológico y eficiente de la energía Fachada de protección térmica completa con espesor de aislamiento de 22 cm persianas de rodillo eléctrico Calefacción de suelo en todas las habitaciones Planes de piso incorporados con áreas de vida iluminadas y espacios abiertos generosos Altura de la habitación 270 cm en la planta baja Terraza y jardín (aprox. 121.40 - aprox. 213 m2) Versión llave en mano es posible a un costo adicional Ubicación Langenzersdorf está situado directamente en la frontera norte de la ciudad a Viena y ofrece la combinación perfecta de proximidad urbana e idílico rural. La conexión de transporte es excelente: la estación S-Bahn "Bisamberg" se puede llegar a unos minutos a pie, la línea de autobús 850 (Bhf Floridsdorf - Bhf Korneuburg) cerca y la conexión de la autopista (A22, B3) en las inmediaciones. Infraestructura Escuelas, jardines de infancia y atención médica Facilidades de atención, cafeterías y restaurantes son excelentes Actividades de ocio ricas con Isla del Danubio, Batalla del Mar, Bisamberg, Ciclismo y rutas de senderismo en las inmediaciones Langenzersdorf convence con su alta calidad de vida – un lugar donde la vida urbana y la naturaleza se combinan armoniosamente. Derecho de construcción Período de contrato hasta 2105, 60 años de aviso por parte de la Stift Klosterneuburg Interés mensual en la construcción de derechos de € 192,- al Chorherrenstift Klosterneuburg. Resolución El fideicomisario es Mag. Marlene Krüger, el procesamiento de contratos cuesta 1,5% más 20% IVA e incluye contrato de compra, lavado de dinero y confianza. Las incautaciones de garantía real para el banco de financiación se cargarán por separado si son necesarias. Otros Los costos de conexión (agua, canal, electricidad) i.H.v. € 7.980 - se pagarán por separado. "Preparados para limpiar" significa que los revestimientos de pared, techo y suelo, así como los accesorios todavía tienen que ser aplicados a los sustratos preparados por el desarrollador. La variante lista para comprar permite a los compradores el mayor alcance posible en la elección individual del diseño de las áreas de cobertura al mismo tiempo que reduce los costos adicionales de la compra. La casa 7 se ofrece en estado listo para peinar y tiene aprox. 120 m2 de espacio habitable, 4 habitaciones y habitaciones contiguas en 2 plantas. Disposición de la habitación en planta baja / sala de estar: hall de entrada, sala técnica, porche, amplio salón-comedor con cocina y salida a la terraza, 1 aseo con preparación de conexión para una lavamanos y una ducha Disposición de habitaciones en la planta superior / sala de estar: hall con habitaciones de acceso central, 2 niños/dormitorio/sala, 1 dormitorio principal con armario, 1 baño grande (preparación para lavabo, bañera, ducha & WC) Terrazas/zonas de jardín: aprox. 190 m2 Piezas: 2 parcelas requeridas están incluidas en el precio de compra y asignadas Nota de acuerdo con la ley de plantilla de ID de energía: El propietario o el Vendedor hizo un pase de energía, después de que se aclarara la obligación generalmente aplicable de presentar comunicaciones, así como la solicitud de su creación, todavía no se ha presentado. Por lo tanto, se considera que se está de acuerdo al menos una eficiencia energética general correspondiente a la edad y naturaleza del edificio. No asumen ninguna responsabilidad o responsabilidad por la eficiencia energética real de la propiedad ofrecida.

Localización en el mapa

Langenzersdorf, Austria
Educación
Cuidado de la salud
Ocio

Calculadora hipotecaria

Tipo de interés, %
Plazo del préstamo, años
Coste de la propiedad
Pago inicial, %
{{ initialPaymentCurrency }} USD
Atención Ha cambiado el parámetro del coste de la vivienda a {{ differentPrice }}%. Esto afecta a la pertinencia de calcular los pagos mensuales de la propiedad actual. Devuélvelo
Tipo de interés
{{ loanPercentValue.toLocaleString() }} %
Tipo de interés
Importe del préstamo
{{ mortgageAmount }} USD
Importe del préstamo
Fecha límite
{{ loanPeriodValue | pluralize("año", "años") }}
Fecha límite
Pago mensual
{{ paymentPerMonth }} USD
Pago mensual
Under SunUnder Sun
Pregunte lo que quiera
Envíe su solicitud al agente
¡Gracias! Su solicitud ha sido aceptada
Quiero ver esta instalación. ¿Está actualizado el valor del inmueble? Deseo más información sobre el inmueble. ¿Cuales las condiciones de compra para extranjeros? Me gustaría ver más fotos/vídeos. ¿Es posible comprar a crédito/hipoteca? ¿Obtendré un permiso de residencia si compro una vivienda?
Volver a Dejar una solicitud
Propiedades similares