Appartement 3 chambres Qawra, Malte

Saint Pauls Bay, Qawra, Malte
Prix ​​sur demande
;
ID: 2114711
ID de la propriété sur Realting
In CRM: 21406
Identifiant de l'annonce sur le site internet ou dans le CRM de l'entreprise
Dernière actualisation: 06/02/2025

Emplacement

  • Pays
    Malte
  • État
    Northern Region
  • Ville
    Saint Paul's Bay
  • Village
    Qawra

Caractéristiques de la propriété

Paramètres de l'appartement

  • Chambres
    Chambres
    3
  • Salles de bains
    Salles de bains
    2

Description

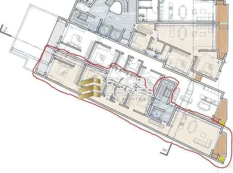
Un grand appartement situé dans un nouveau développement près du front de mer. La propriété est au-dessous du niveau du penthouse et comprend une grande Cuisine/Vivre/Diner avec une terrasse avant de 16.23m2.
Plus loin dans nous trouvons trois chambres doubles, dont une avec une salle de bains et une terrasse sèche à l'arrière, la salle de bains principale et une buanderie. Le bloc devrait être prêt en mars 2020 et vendu en coque.

Localisation sur la carte

Saint Pauls Bay, Qawra, Malte
Soins de santé
Épiceries
Alimentation et boissons
Loisirs
Posez toutes vos questions
Envoyez votre demande à l'agent
Merci! Votre demande a été acceptée
Je veux voir cette propriété. Le prix du bien est-il pertinent ? Je souhaite plus d'informations sur la propriété. Quelles sont les conditions d'achat pour les étrangers ? Je veux voir plus de photos/vidéos. Est-il possible d'acheter avec un prêt/hypothèque ? Vais-je obtenir un titre de séjour si j’achète une propriété ?
Dos Laisser une demande
Propriétés similaires