Atterrir Wuppertal, Allemagne

Allemagne, Wuppertal
$430,545
;
Dernière actualisation: 26/03/2026

Emplacement

  • Pays
    Allemagne
  • État
    Rhénanie-du-Nord-Westphalie
  • Ville
    Wuppertal

Description

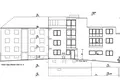
The project involves the construction of an 11-unit residential building with underground parking in the city of Wuppertal.

Total estimated costs for the land and construction amount to €2,197,687.

Expected profit after sale: €509,813.

Brokerage fee: +4.76% of the investment amount.

Additional information is available upon request.

Localisation sur la carte

Allemagne, Wuppertal
Éducation
Alimentation et boissons
Loisirs
HayatHayat
Posez toutes vos questions
Envoyez votre demande à l'agent
Merci! Votre demande a été acceptée
Je veux voir cette propriété. Le prix du bien est-il pertinent ? Je souhaite plus d'informations sur la propriété. Quelles sont les conditions d'achat pour les étrangers ? Je veux voir plus de photos/vidéos. Est-il possible d'acheter avec un prêt/hypothèque ? Vais-je obtenir un titre de séjour si j’achète une propriété ?
Dos Laisser une demande
Propriétés similaires