Permettre la visualisation du contenu du site et l'accès aux fonctionnalités. Ce type de cookies est utilisé uniquement pour le bon fonctionnement du site et n'est pas cédé à des tiers. La désactivation est impossible sans perturber le fonctionnement du site.
Cookies analytiques
Aidez-nous à améliorer les performances du site, votre expérience d'utilisation du site et à le rendre plus pratique à utiliser. Les informations collectées par ces types de cookies sont agrégées et donc anonymes. Utilisé pour fournir des indicateurs statistiques d’utilisation du site sans identifier les utilisateurs.
Cookies publicitaires
Permettez-nous de réduire nos coûts marketing et d’améliorer l’expérience utilisateur.
Realting.com utilise des cookies pour améliorer votre interaction avec le site Web. Vous pouvez configurer quels cookies seront enregistrés sur votre appareil.
En savoir plus
ISTRIA, POREČ (surroundings) – House at the end of a row with a sea view
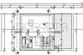
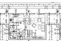
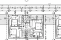
In a small Istrian town not far from Poreč, this family house, the end of a row, with its own yard and swimming pool is located.House C, living area 170 m2 and 350 m2 garden.The ground floor consists of an entrance porch, a hallway, two storage rooms, a storage room, a toilet, a kitchen with a dining room, a large living room with a fireplace, an exit to the terrace and to the swimming pool with a sunbathing area.There are three bedrooms on the first floor, one of which is a master bedroom with access to the terrace, with its own bathroom, the other two bedrooms have a shared bathroom.In the attic of you can optionally accommodate another bedroom with a bathroom or a fitness corner with a jacuzzi.The heating is solved by a heat pump and underfloor heating is provided in all rooms except the bedrooms, although in the construction phase, since the buyer will be able to decide with the investor about minor changes in the choice of color of sanitary ware, ceramics and others.
I28529
Baderna
Localisation sur la carte
Grad Porec, Croatie
Alimentation et boissons
Loisirs
Calculateur d'hypothèque
Taux d'intérêt, %
Durée du prêt, années
Coût de la propriété
Acompte, %
{{ initialPaymentCurrency }} USD
Veuillez noter! Vous avez modifié le paramètre de coût de propriété en {{ differentPrice }}%. Cela affecte la pertinence du calcul des mensualités pour le bien actuel.
Retour
En appuyant sur le bouton "Confirmer", vous obtiendrez 50 realtings (5 EUR) déduits du solde de votre compte personnel pour le superlike.
Payer 5 EUR
Annuler
Lorsque vous cliquez sur le bouton « Payer », vous serez automatiquement redirigé vers la page de recharge, car vous n'avez pas suffisamment de Realtings sur votre solde.
Superlike!
Vous avez déjà attribué un superlike à cette propriété. Pour annuler le superlike, cliquez sur "Supprimer".
Veuillez noter qu'il n'y a aucun remboursement des frais immobiliers pour l'annulation d'un superlike.
Retirer
Partir
En cliquant sur le bouton "Supprimer", vous annulez le superlike sans restituer les transferts à votre solde.
Partager la recommandation!
Recevez une commission sur les transactions réussies en recommandant la propriété en utilisant les liens ci-dessous !
Seulement disponible pour les utilisateurs inscrits
Vous pouvez partager la recommandation sur vos réseaux sociaux
Copier le lien
Partager la recommandation!
Pourquoi devrais-je recommander ?
Vous pouvez partager la recommandation sur vos réseaux sociaux
Copier le lien
Le bien n’est pas affiché dans votre section de recommandations. Ajoutez-le à vos recommandations pour qu’il apparaisse sur votre page
Ajouter à mes recommandations
Cet élément est enregistré dans vos recommandations Realting. Pour le supprimer de vos recommandations, cliquez sur le lien ci-dessous
Supprimer des recommandations
Autorisation requise
Vous devez être un utilisateur enregistré pour pouvoir utiliser pleinement vos favoris et pouvoir visualiser et partager ce que vous avez ajouté à vos favoris.