Permettre la visualisation du contenu du site et l'accès aux fonctionnalités. Ce type de cookies est utilisé uniquement pour le bon fonctionnement du site et n'est pas cédé à des tiers. La désactivation est impossible sans perturber le fonctionnement du site.
Cookies analytiques
Aidez-nous à améliorer les performances du site, votre expérience d'utilisation du site et à le rendre plus pratique à utiliser. Les informations collectées par ces types de cookies sont agrégées et donc anonymes. Utilisé pour fournir des indicateurs statistiques d’utilisation du site sans identifier les utilisateurs.
Cookies publicitaires
Permettez-nous de réduire nos coûts marketing et d’améliorer l’expérience utilisateur.
Realting.com utilise des cookies pour améliorer votre interaction avec le site Web. Vous pouvez configurer quels cookies seront enregistrés sur votre appareil.
En savoir plus
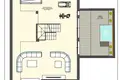
Cette villa exclusive, avec une piscine privée, une grande terrasse et une vue imprenable sur la baie de Benidorm et la nature, est prête à emménager.
Clé en main et avec toutes les facilités pour une utilisation quotidienne -
Grande cuisine équipée d’appareils électroménagers -.
3 Chambres -
2 salles de bains -
Chauffage au sol dans les salles de bains.
Terrasse
Climatisation canalisée
Piscine privée
Parking
Sous-sol-
De plus, vous profiterez également de tous les services communs d’une urbanisation privée moderne : deux piscines à débordement, piscine chauffée, espaces verts, espace de détente, salle de sport, terrain de sport, paddle-tennis, etc.
Localisation sur la carte
Finestrat, Espagne
Calculateur d'hypothèque
Taux d'intérêt, %
Durée du prêt, années
Coût de la propriété
Acompte, %
{{ initialPaymentCurrency }} USD
Veuillez noter! Vous avez modifié le paramètre de coût de propriété en {{ differentPrice }}%. Cela affecte la pertinence du calcul des mensualités pour le bien actuel.
Retour
En appuyant sur le bouton "Confirmer", vous obtiendrez 50 realtings (5 EUR) déduits du solde de votre compte personnel pour le superlike.
Payer 5 EUR
Annuler
Lorsque vous cliquez sur le bouton « Payer », vous serez automatiquement redirigé vers la page de recharge, car vous n'avez pas suffisamment de Realtings sur votre solde.
Superlike!
Vous avez déjà attribué un superlike à cette propriété. Pour annuler le superlike, cliquez sur "Supprimer".
Veuillez noter qu'il n'y a aucun remboursement des frais immobiliers pour l'annulation d'un superlike.
Retirer
Partir
En cliquant sur le bouton "Supprimer", vous annulez le superlike sans restituer les transferts à votre solde.
Partager la recommandation!
Recevez une commission sur les transactions réussies en recommandant la propriété en utilisant les liens ci-dessous !
Seulement disponible pour les utilisateurs inscrits
Vous pouvez partager la recommandation sur vos réseaux sociaux
Copier le lien
Partager la recommandation!
Pourquoi devrais-je recommander ?
Vous pouvez partager la recommandation sur vos réseaux sociaux
Copier le lien
Le bien n’est pas affiché dans votre section de recommandations. Ajoutez-le à vos recommandations pour qu’il apparaisse sur votre page
Ajouter à mes recommandations
Cet élément est enregistré dans vos recommandations Realting. Pour le supprimer de vos recommandations, cliquez sur le lien ci-dessous
Supprimer des recommandations
Autorisation requise
Vous devez être un utilisateur enregistré pour pouvoir utiliser pleinement vos favoris et pouvoir visualiser et partager ce que vous avez ajouté à vos favoris.