Permettre la visualisation du contenu du site et l'accès aux fonctionnalités. Ce type de cookies est utilisé uniquement pour le bon fonctionnement du site et n'est pas cédé à des tiers. La désactivation est impossible sans perturber le fonctionnement du site.
Cookies analytiques
Aidez-nous à améliorer les performances du site, votre expérience d'utilisation du site et à le rendre plus pratique à utiliser. Les informations collectées par ces types de cookies sont agrégées et donc anonymes. Utilisé pour fournir des indicateurs statistiques d’utilisation du site sans identifier les utilisateurs.
Cookies publicitaires
Permettez-nous de réduire nos coûts marketing et d’améliorer l’expérience utilisateur.
Realting.com utilise des cookies pour améliorer votre interaction avec le site Web. Vous pouvez configurer quels cookies seront enregistrés sur votre appareil.
En savoir plus
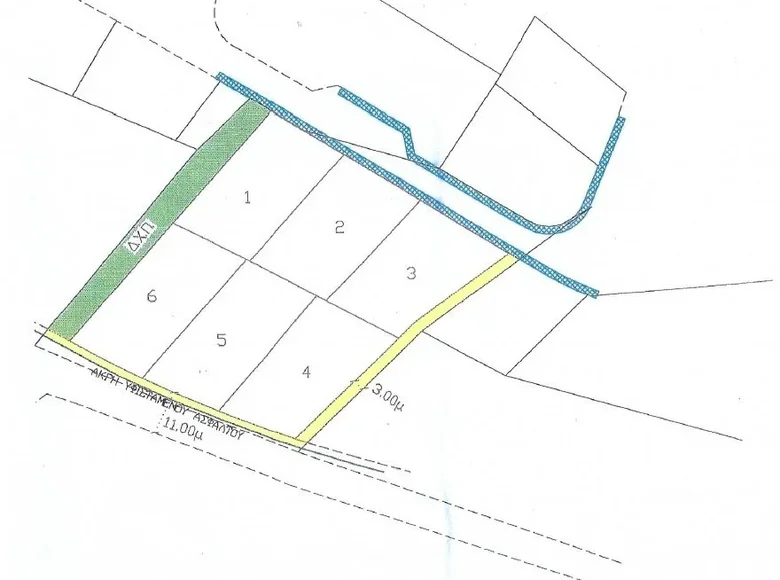
Terrain résidentiel à vendre – Psematismenos, Larnaca
Une occasion exceptionnelle d'acquérir un terrain résidentiel de 6 875 m2 dans le charmant village de Psematismenos, idéalement situé entre Larnaca et Limassol, à seulement 20 minutes en voiture de chaque ville.
Permis de planification Approuvé – Division en 6 parcelles résidentielles (6 x 876 m2)
Zonage : Zone résidentielle
Densité de construction: 60%
Taux de couverture: 35%
Services publics et route Accès en place
Belle mer Vues
Très proche de l'autoroute – Accès rapide aux plages de Zygi et Maroni
Lieu privilégié pour l'investissement ou le développement de résidences privées
Un mélange rare de commodité, de tranquillité et de beauté scénique – parfait pour les développeurs ou ceux qui cherchent à construire dans un village côtier serein mais accessible.
En appuyant sur le bouton "Confirmer", vous obtiendrez 50 realtings (5 EUR) déduits du solde de votre compte personnel pour le superlike.
Payer 5 EUR
Annuler
Lorsque vous cliquez sur le bouton « Payer », vous serez automatiquement redirigé vers la page de recharge, car vous n'avez pas suffisamment de Realtings sur votre solde.
Superlike!
Vous avez déjà attribué un superlike à cette propriété. Pour annuler le superlike, cliquez sur "Supprimer".
Veuillez noter qu'il n'y a aucun remboursement des frais immobiliers pour l'annulation d'un superlike.
Retirer
Partir
En cliquant sur le bouton "Supprimer", vous annulez le superlike sans restituer les transferts à votre solde.
Partager la recommandation!
Recevez une commission sur les transactions réussies en recommandant la propriété en utilisant les liens ci-dessous !
Seulement disponible pour les utilisateurs inscrits
Vous pouvez partager la recommandation sur vos réseaux sociaux
Copier le lien
Partager la recommandation!
Pourquoi devrais-je recommander ?
Vous pouvez partager la recommandation sur vos réseaux sociaux
Copier le lien
Cet élément est enregistré dans vos recommandations Realting. Pour le supprimer de vos recommandations, cliquez sur le lien ci-dessous
Supprimer des recommandations
Autorisation requise
Vous devez être un utilisateur enregistré pour pouvoir utiliser pleinement vos favoris et pouvoir visualiser et partager ce que vous avez ajouté à vos favoris.