Propriété commerciale 161 m² à Minsk, Bélarus

Bélarus, Minsk, Minsk Kozlova per
Prix d’archivage $114,097
Vendu ou obsolète
Propriétés similaires
Fabrication 5 894 m² dans Hlousk, Bélarus
Fabrication 5 894 m²
Hlousk, Bélarus
Surface 5 894 m²
Nombre d'étages 2
La base de production comprend 3 (trois) immeubles d'immobilisations : - un bâtiment de prod…
$110,961
Laisser une demande
Fermer
Veuillez informer le vendeur que vous avez trouvé cette annonce sur Realting.com
Vendeur particulier
Langues
Русский
Boutique 206 m² dans Maladetchna, Bélarus
Boutique 206 m²
Maladetchna, Bélarus
Surface 206 m²
Sol 1/5
Espace de vente isolé 205.7 m2 au cœur de Molodechno ! ❤️ Vous cherchez l'endroit idéal pour…
$108,000
Laisser une demande
Fermer
Veuillez informer le vendeur que vous avez trouvé cette annonce sur Realting.com
Agence
Центр международной недвижимости Моя 7Я
Langues
English, Русский
Boutique 46 m² dans Minsk, Bélarus
Boutique 46 m²
Minsk, Bélarus
Nombre de pièces 1
Surface 46 m²
Sol 1/25
Vente de locaux multifonctionnels à Minsk-World! Adresse: Minsk, Brilevskaya str. 27 - La su…
$99,974
Laisser une demande
Fermer
Veuillez informer le vendeur que vous avez trouvé cette annonce sur Realting.com
Agence
Центр международной недвижимости Моя 7Я
Langues
English, Русский
Boutique 47 m² dans Minsk, Bélarus
Boutique 47 m²
Minsk, Bélarus
Nombre de pièces 1
Surface 47 m²
Sol 1/25
Locaux commerciaux dans le monde LCD Minsk ❤️ Salle de commerce 46,7 mètres carrés au premie…
$130,000
Laisser une demande
Fermer
Veuillez informer le vendeur que vous avez trouvé cette annonce sur Realting.com
Agence
Центр международной недвижимости Моя 7Я
Langues
English, Русский
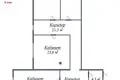
Mis à jour à: 04/04/2023

Emplacement

Pays: Bélarus
Ville: Minsk
Adresse: zavulak Kazlova, 7

Paramètres du bâtiment

Nombre d'étages: 10

Paramètres de propriété

Sol: 5
Superficie totale: 161 m²

Paramètres d'investissement

T.V.A.: TVA 0%

Description

Local à vendre dans un centre d'affaires de dix étages (classe B) avec accès 24h/24 et 7j/7 à l'adresse Minsk per. Maison Kozlova 7

 À la station de métro "Tractor Plant" un arrêt en transport ou 15 minutes à pied.

À la station de métro "Ploshchad Pobedy" 15 minutes en transports.

Commerces, banques, courts de tennis sont accessibles à pied. Il y a un parc et un étang à proximité.

Les locaux ont été rénovés, mais les meubles et électroménagers intégrés restent. Il y a une place pour une mini cuisine.

Communications : Climatisation, Fibre optique, Internet haut débit,  Alarme.

10ème étage -   121,6 m2

5ème étage -  160,7 m2

 5ème étage –  242,7 m2

5ème étage –  274,9 m2

La superficie totale des locaux à vendre est de  800 m2

Les locaux peuvent être achetés ensemble ou séparément.

Tous les locaux sont loué et apporter un revenu mensuel stable et constant.  

Coût initial 750  

Des versements sont possibles. ÉCHANGE

SARL "Agence immobilière "Centaines de mètres"

UNP : 193505948

Licence : 02240/411, Ministère de la Justice de la République de Biélorussie, 19/03/2021

Accord : 31/1-23 du 02/09/2023

Viber Telegram WhatsApp.

Emplacement

Bélarus, Minsk, Minsk Kozlova per