Atterrir 535 m² Nova vas, Slovénie

Nova vas, Slovénie
Prix d’archivage $410,839
Vendu ou obsolète
Propriétés similaires
Aucune propriété similaire en Slovénie n'a été trouvée. Utiliser la recherche étendue
Mis à jour à: 19/10/2024

Emplacement

Pays: Slovénie
Région: Bloke
Village: Nova vas
Adresse: Velike Bloke, 2

Paramètres de l'appartement

Superficie totale: 535 m²

Description

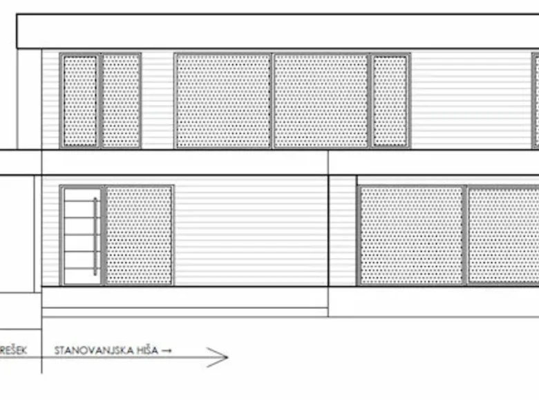
Land in Ljubljana. WITH BUILDING PERMISSION!

Plot of building land with an area of ​​535 m2 with a valid permit for the construction of a two-story house with a total area of ​​193 m2.

The plot is flat in a quiet location next to a meadow, located in the Ljubljana region, in the Vich Rudnik area

House layout:

  • First floor: kitchen connected to the dining room and living room with access to an open terrace, hallway, office, bathroom, dressing room, storage room, staircase.
  • Second floor: bedroom with dressing room, children's room room, laundry room, two bathrooms, one of which has a sauna, gym.


There is a carport for parking 2 cars.

There is no sewage system in this area , therefore it is planned to build a small wastewater treatment plant, and heating is planned using a heat pump.

The utility fee and all project documentation have already been paid.

The location is suitable for families who want to live in a quiet place and at the same time have quick access to all infrastructure. Here you can enjoy peace and tranquility, despite the proximity to the city center.

It is ideal a place to create your own home, taking into account individual preferences and needs. All this makes this site an attractive option for investment and construction.

Additional transaction costs: commission fee 2% + VAT.

(PZ99999997997501AB)

Emplacement

Nova vas, Slovénie