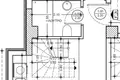
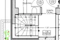
Un maisonnette moderne (Γ3) de 89 m² est à vendre dans un complexe résidentiel en construction, situé dans l’un des quartiers les plus attractifs de Thessalonique — Perea.
L’achèvement de la construction est prévu pour 2027.
La disposition a été soigneusement pensée : 2 chambres séparées et confortables, un grand salon combiné avec une cuisine ouverte moderne, 2 salles de bains, et des balcons offrant une belle vue sur les environs.
Le complexe comprendra des espaces communs paysagers et verdoyants, une piscine et un espace de détente, assurant confort et qualité de vie aux futurs résidents.
Cet appartement est un choix idéal aussi bien pour y vivre près de la mer que comme investissement rentable dans l’immobilier moderne.
