Appartement 2 chambres 51 m² Minsk, Bélarus

Bélarus, Minsk
$98,900
$1,939/m²
;
Dernière actualisation: 26/01/2026

Emplacement

  • Pays
    Bélarus
  • Ville
    Minsk
  • Adresse
    vulica Janki Maura, 22
  • Métro
    Sportivnaya (~ 1000 m)

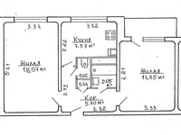
Caractéristiques de la propriété

Paramètres de l'appartement

  • Prix ​​par m²
    Prix ​​par m²
    $1,939/m²
  • Sol
    Sol
    6
  • Pièces
    Pièces
    2
  • Superficie totale
    Superficie totale
    51 m²

Paramètres du bâtiment

  • L'année de construction
    L'année de construction
    1972
  • Nombre d'étages
    Nombre d'étages
    9

Description

Nous vous proposons à la vente un appartement 2 pièces lumineux et soigné dans une partie calme et verdoyante du quartier de Frunze.

L'appartement est entièrement prêt à vivre:
- Les portes intérieures ont été remplacées, les fenêtres en PVC modernes, la porte en métal d'entrée ont été installées;
- Tous les appareils et meubles intégrés sont laissés à la vente - venez vivre!

La maison a subi des réparations majeures en 2018 : les façades ont été isolées et peintes, les communications techniques ont été remplacées. L'entrée est toujours propre et bien aménagée, les voisins sont calmes et sympathiques.

La région a une infrastructure développée: à distance de marche - écoles, jardins d'enfants, cliniques pour enfants et adultes, pharmacies, supermarchés, centres commerciaux, banques, bureau de poste et même un cinéma.

Pour les promenades et les loisirs - une immense zone de parc forestier "Medvezhino" juste à côté de: air pur, silence et la nature dans la ville.

Liaisons de transport pratiques:
- La station de métro Pushkinskaya est à seulement 10 minutes à pied;
- Mouvement régulier des autobus, trolleybus et taxis.

L'appartement est parfait pour la résidence permanente et la location - demande stable en raison de l'emplacement idéal et le confort.

Nous vous aiderons à vendre votre propriété pour l'acheter.

Nous vous conseillerons gratuitement, fournirons une assistance professionnelle dans les questions complexes avec l'immobilier, fournirons un soutien juridique pour la transaction et la sécurité des règlements mutuels.

Entreprise privée unitaire "Dianest", UNP 190124316, licence no02240/54 du 06.06.2005. Contrat no 15/4 du 26.01.2026

Numéro de contrat avec l'agence 15/4 de 2026-01-26

Localisation sur la carte

Bélarus, Minsk
Éducation
Soins de santé

Calculateur d'hypothèque

Taux d'intérêt, %
Durée du prêt, années
Coût de la propriété
Acompte, %
{{ initialPaymentCurrency }} USD
Veuillez noter! Vous avez modifié le paramètre de coût de propriété en {{ differentPrice }}%. Cela affecte la pertinence du calcul des mensualités pour le bien actuel. Retour
Taux d'intérêt
{{ loanPercentValue.toLocaleString() }} %
Taux d'intérêt
Montant du prêt
{{ mortgageAmount }} USD
Montant du prêt
Période
{{ loanPeriodValue | pluralize("année", "années") }}
Période
Paiement mensuel
{{ paymentPerMonth }} USD
Paiement mensuel
Under SunUnder Sun
Posez toutes vos questions
Envoyez votre demande à l'agent
Merci! Votre demande a été acceptée
Je veux voir cette propriété. Le prix du bien est-il pertinent ? Je souhaite plus d'informations sur la propriété. Quelles sont les conditions d'achat pour les étrangers ? Je veux voir plus de photos/vidéos. Est-il possible d'acheter avec un prêt/hypothèque ? Vais-je obtenir un titre de séjour si j’achète une propriété ?
Dos Laisser une demande
Propriétés similaires
Appartement 3 chambres dans Minsk, Bélarus
Appartement 3 chambres
Minsk, Bélarus
Nombre de pièces 3
Surface 63 m²
Sol 1/5
Appartement de trois chambres à rénover avec possibilité de réaménagement ❤️ Spacieux appart…
$87,900
Laisser une demande
Fermer
Veuillez informer le vendeur que vous avez trouvé cette annonce sur Realting.com
Agence
Центр международной недвижимости Моя 7Я
Langues
English, Русский
Appartement 3 chambres dans Salihorsk, Bélarus
Appartement 3 chambres
Salihorsk, Bélarus
Nombre de pièces 3
Surface 90 m²
Sol 5/10
Vente d'appartement 3 pièces dans le centre de Soligorsk ❤️Spacieux appartement de 3 pièces …
$89,900
Laisser une demande
Fermer
Veuillez informer le vendeur que vous avez trouvé cette annonce sur Realting.com
Agence
Центр международной недвижимости Моя 7Я
Langues
English, Русский
Appartement 2 chambres dans Minsk, Bélarus
Appartement 2 chambres
Minsk, Bélarus
Nombre de pièces 2
Surface 46 m²
Sol 4/9
Appartement 2 chambres à côté des parcs et du canal ❤️ Appartement de 2 pièces 46.4 m2 avec …
$103,000
Laisser une demande
Fermer
Veuillez informer le vendeur que vous avez trouvé cette annonce sur Realting.com
Agence
Центр международной недвижимости Моя 7Я
Langues
English, Русский
Appartement 2 chambres dans Minsk, Bélarus
Appartement 2 chambres
Minsk, Bélarus
Nombre de pièces 2
Surface 52 m²
Sol 9/12
Appartement confortable de deux chambres avec rénovation à Serebryanka ❤️Appartement d'une c…
$92,900
Laisser une demande
Fermer
Veuillez informer le vendeur que vous avez trouvé cette annonce sur Realting.com
Agence
Центр международной недвижимости Моя 7Я
Langues
English, Русский